Размер шрифта
Цвет фона и шрифта
Изображения
Озвучивание текста
Обычная версия сайта
ВТС
Хорошая цена и высокое качество
+7 495 799 94 01
Интернет-магазин   
Запрос и заказ
О компании
  • О нас
  • Реализованные проекты
  • Новости
  • Карьера
Проекты
Вентиляция и отопление
  • Агрегаты для вентиляции и кондиционирования
    • BTC
    • BTC Pool
    • BTC HY
    • BTC Compact
    • BTC Lite
    • BTC Compact S-R
    • BTC Residence
    • BTC S
    • C-BTC S
    • BTC Compact S
    • Y-BTC
    • D-BTC
  • Крышные установки, Фанкойлы
    • BTC Fancoil
    • BTC Rooftop
  • Воздушно-отопительные агрегаты
    • ВОЛКАНО РУ
  • Воздушные завесы
    • ВИНГ
  • Cabero
    • Плоский охладитель ACS
    • Драйкулеры
    • V-образные системы ACW
    • ACD
    • HCCD
    • JACD
    • SKCH
    • Плоских охладитель ACH
Чиллеры
Документы
  • Системы вентиляции
    • ВТС, BTC Pool, BTC HY
    • BTC S, C-BTC S, BTC Compact S
    • BTC Residence, BTC Compact
    • D-BTC, Y-BTC
  • Оборудование очистки воздуха
    • ВТС F-AIR
  • Оборудование охлаждения
    • Чиллеры ВТС СМ
  • Воздушно-отопительные агрегаты
    • ВОЛКАНО РУ
    • BTC Fancoil
    • АРХИВ
  • Воздушные завесы
    • ВИНГ
Сервис
Контакты
ВТС
Хорошая цена и высокое качество
Интернет-магазин   
Запрос и заказ
О компании
  • О нас
  • Реализованные проекты
  • Новости
  • Карьера
Проекты
Вентиляция и отопление
  • Агрегаты для вентиляции и кондиционирования
  • BTC
    Стандартные моноблочные агрегаты
  • BTC Pool
    Моноблочные агрегаты для бассейнов
  • BTC HY
    Моноблочные гигиенические агрегаты
  • BTC Compact
    Напольные компактные агрегаты
  • BTC Lite
    Вентиляционные агрегаты российского производства
  • BTC Compact S-R
    Подвесные агрегаты с вращающимся регенератором
  • BTC Residence
    Напольные компактные агрегаты с вертикальными воздуховодами
  • BTC S
    Подвесные компактные агрегаты с пластинчатым рекуператором
  • C-BTC S
    Подвесные компактные агрегаты с пластинчатым рекуператором
  • BTC Compact S
    Подвесные компактные агрегаты с гексагональным рекуператором
  • Y-BTC
    Круглые канальные вентиляторы
  • D-BTC
    Прямоугольные канальные вентиляторы
  • Крышные установки, Фанкойлы
  • BTC Fancoil
    Фанкойлы
  • BTC Rooftop
    Крышные установки
  • Воздушно-отопительные агрегаты
  • ВОЛКАНО РУ
    Воздушно-отопительные агрегаты
  • Воздушные завесы
  • ВИНГ
    Воздушные завесы
  • Cabero
  • Плоский охладитель ACS
    Плоский охладитель ACS
    Плоский охладитель ACS
  • Драйкулеры
    Драйкулеры
    Драйкулеры
  •  V-образные системы ACW
    V-образные системы ACW
    V-образные системы ACW
  • ACD
    V-образные системы ACD
    ACD
  • HCCD
    Комбинированные системы HCCD
    HCCD
  • JACD
    V-образные системы Jumbo JACD
    JACD
  • SKCH
    Охладитель типа «сэндвич» SKCH
    SKCH
  • Плоских охладитель ACH
    Плоских охладитель ACH
    Плоских охладитель ACH
Чиллеры
Документы
  • Системы вентиляции
  • ВТС, BTC Pool, BTC HY
    ВТС
    ВТС, BTC Pool, BTC HY
  •  BTC S, C-BTC S, BTC Compact S
    Компактные подвесные агрегаты
    BTC S, C-BTC S, BTC Compact S
  • BTC Residence, BTC Compact
    Компактные напольные агрегаты
    BTC Residence, BTC Compact
  • D-BTC, Y-BTC
    Канальные вентиляторы
    D-BTC, Y-BTC
  • Воздушно-отопительные агрегаты
  • ВОЛКАНО РУ
    Отопительный агрегат
    ВОЛКАНО РУ
  • BTC Fancoil
    Фанкойлы
    BTC Fancoil
  • АРХИВ
    АРХИВ
  • Оборудование очистки воздуха
  • ВТС F-AIR
    Электростатические фильтры
    ВТС F-AIR
  • Оборудование охлаждения
  • Чиллеры ВТС СМ
    Чиллеры ВТС СМ
    Чиллеры ВТС СМ
  • Воздушные завесы
  • ВИНГ
    ВИНГ
    ВИНГ
Сервис
Контакты
    ВТС
    О компании
    • О нас
    • Реализованные проекты
    • Новости
    • Карьера
    Проекты
    Вентиляция и отопление
    • Агрегаты для вентиляции и кондиционирования
    • BTC
      Стандартные моноблочные агрегаты
    • BTC Pool
      Моноблочные агрегаты для бассейнов
    • BTC HY
      Моноблочные гигиенические агрегаты
    • BTC Compact
      Напольные компактные агрегаты
    • BTC Lite
      Вентиляционные агрегаты российского производства
    • BTC Compact S-R
      Подвесные агрегаты с вращающимся регенератором
    • BTC Residence
      Напольные компактные агрегаты с вертикальными воздуховодами
    • BTC S
      Подвесные компактные агрегаты с пластинчатым рекуператором
    • C-BTC S
      Подвесные компактные агрегаты с пластинчатым рекуператором
    • BTC Compact S
      Подвесные компактные агрегаты с гексагональным рекуператором
    • Y-BTC
      Круглые канальные вентиляторы
    • D-BTC
      Прямоугольные канальные вентиляторы
    • Крышные установки, Фанкойлы
    • BTC Fancoil
      Фанкойлы
    • BTC Rooftop
      Крышные установки
    • Воздушно-отопительные агрегаты
    • ВОЛКАНО РУ
      Воздушно-отопительные агрегаты
    • Воздушные завесы
    • ВИНГ
      Воздушные завесы
    • Cabero
    • Плоский охладитель ACS
      Плоский охладитель ACS
      Плоский охладитель ACS
    • Драйкулеры
      Драйкулеры
      Драйкулеры
    •  V-образные системы ACW
      V-образные системы ACW
      V-образные системы ACW
    • ACD
      V-образные системы ACD
      ACD
    • HCCD
      Комбинированные системы HCCD
      HCCD
    • JACD
      V-образные системы Jumbo JACD
      JACD
    • SKCH
      Охладитель типа «сэндвич» SKCH
      SKCH
    • Плоских охладитель ACH
      Плоских охладитель ACH
      Плоских охладитель ACH
    Чиллеры
    Документы
    • Системы вентиляции
    • ВТС, BTC Pool, BTC HY
      ВТС
      ВТС, BTC Pool, BTC HY
    •  BTC S, C-BTC S, BTC Compact S
      Компактные подвесные агрегаты
      BTC S, C-BTC S, BTC Compact S
    • BTC Residence, BTC Compact
      Компактные напольные агрегаты
      BTC Residence, BTC Compact
    • D-BTC, Y-BTC
      Канальные вентиляторы
      D-BTC, Y-BTC
    • Воздушно-отопительные агрегаты
    • ВОЛКАНО РУ
      Отопительный агрегат
      ВОЛКАНО РУ
    • BTC Fancoil
      Фанкойлы
      BTC Fancoil
    • АРХИВ
      АРХИВ
    • Оборудование очистки воздуха
    • ВТС F-AIR
      Электростатические фильтры
      ВТС F-AIR
    • Оборудование охлаждения
    • Чиллеры ВТС СМ
      Чиллеры ВТС СМ
      Чиллеры ВТС СМ
    • Воздушные завесы
    • ВИНГ
      ВИНГ
      ВИНГ
    Сервис
    Контакты
      Интернет-магазин   
      Запрос и заказ
      ВТС
      Телефоны
      +7 495 799 94 01
      Заказать звонок
      ВТС
      • О компании
        • О компании
        • О нас
        • Реализованные проекты
        • Новости
        • Карьера
      • Проекты
      • Вентиляция и отопление
        • Вентиляция и отопление
        • Агрегаты для вентиляции и кондиционирования
          • Агрегаты для вентиляции и кондиционирования
          • BTC
          • BTC Pool
          • BTC HY
          • BTC Compact
          • BTC Lite
          • BTC Compact S-R
          • BTC Residence
          • BTC S
          • C-BTC S
          • BTC Compact S
          • Y-BTC
          • D-BTC
        • Крышные установки, Фанкойлы
          • Крышные установки, Фанкойлы
          • BTC Fancoil
          • BTC Rooftop
        • Воздушно-отопительные агрегаты
          • Воздушно-отопительные агрегаты
          • ВОЛКАНО РУ
        • Воздушные завесы
          • Воздушные завесы
          • ВИНГ
        • Cabero
          • Cabero
          • Плоский охладитель ACS
          • Драйкулеры
          • V-образные системы ACW
          • ACD
          • HCCD
          • JACD
          • SKCH
          • Плоских охладитель ACH
      • Чиллеры
      • Документы
        • Документы
        • Системы вентиляции
          • Системы вентиляции
          • ВТС, BTC Pool, BTC HY
          • BTC S, C-BTC S, BTC Compact S
          • BTC Residence, BTC Compact
          • D-BTC, Y-BTC
        • Оборудование очистки воздуха
          • Оборудование очистки воздуха
          • ВТС F-AIR
        • Оборудование охлаждения
          • Оборудование охлаждения
          • Чиллеры ВТС СМ
        • Воздушно-отопительные агрегаты
          • Воздушно-отопительные агрегаты
          • ВОЛКАНО РУ
          • BTC Fancoil
          • АРХИВ
            • АРХИВ
            • VOLCANO EC
            • VOLCANO AC
        • Воздушные завесы
          • Воздушные завесы
          • ВИНГ
      • Сервис
      • Контакты
      Интернет-магазин   
      Запрос и заказ
      • +7 495 799 94 01
        • Телефоны
        • +7 495 799 94 01
        • Заказать звонок
      • Москва, Проектируемый пр-д 4062, 6с16
      • info@vtsrussia.ru
      • Пн. – Пт.: с 9:00 до 18:00
      Главная
      —
      Новости
      —VTS BIM – новые технологии при проектировании систем вентиляции и кондиционирования воздуха

      VTS BIM – новые технологии при проектировании систем вентиляции и кондиционирования воздуха

      VTS BIM – новые технологии при проектировании систем вентиляции и кондиционирования воздуха
      Новости
      29.05.2017

      Бурное развитие информационных технологий привело к появлению принципиально нового подхода    

      Бурное развитие информационных технологий привело к появлению принципиально нового подхода в архитектурно-строительном проектировании. Building Information Modeling(BIM)- технология информационного моделирования объектовявляется развитием хорошо известной сегодня системы автоматизированного проектирования (САПР). Основным отличием от последней, помимо трехмерного черчения, является наличие у модели базы данных, содержащей подробную информацию о технологических, технических, архитектурных, инженерно-строительных, сметных, экономических характеристиках объекта. В зависимости от конкретных требований база может дополняться юридической, эксплуатационной, экологической и другой информацией.

      Итак, развитие BIM технологий – логичный и необратимый процесс эволюции и прогресса в технологиях проектирования и строительства в стремлении сократить время реализации инвестиционных проектов. Применение BIM технологий позволяет организовать поставки компонентов в системе «Just in time», использовать эффективные методы экономии всех видов энергии, оптимизировать инвестиционные и эксплуатационные расходы. Использование BIM технологий ускоряет весь процесс проектирования и реализации инвестиционных проектов.



      Фото 1. Процесс конфигурации агрегатов для вентиляции и кондиционирования VENTUS в программе подбора ClimaCAD OnLine 4.0



      Building Information Modeling (BIM) – это есть разумное сосредоточение многочисленной информации об инвестиции в одном месте в рамках одной цифровой модели. BIM представляет собой цифровое отражение физических и функциональных свойств, как всего объекта, так и отдельных элементов инфраструктуры или компонентов, использованных при его возведении.

      На рынке в настоящее время доступно большое число программ,поддерживающих концепцию BIM. Среди них можно назвать следующие: Autodesk Revit®, Graphisoft ArchiCAD®, BIMVision®, Nemetschek Allplan®, Nemetschek Vectorworks®, Tekla Structures®, SketchUp®.

      В отрасли MEP (Mechanical, Electrical, Plumbing) наиболее распространёнными являются модели в формате RFA (Revit®). Данный формат файлов позволяет разработать многоотраслевую, параметрическую цифровую модель здания, благодаря чему возможно выполнение различных аналитических расчетов (например, энергетических, прочностных, эксплуатационных и т.п.), проводимых для оптимизации инвестиционных затрат, перед началом строительных работ. Качество производимых расчетов напрямую зависит от точности и достоверности данных, заложенных в модели.Поэтому представители всей отрасли проектирования стремятся к тому, чтобы использовать базы данных от производителей, поскольку они содержат все необходимые параметры, характеризующие отдельные элементы объекта и его инфраструктуры.

       

      Базы данных от производителей
      Всё больше производителей различного оборудования предоставляют цифровые модели своих изделий. Однако, часто представляются лишь примерные модели или модели, содержащие основные, номинальные рабочие параметры и примерные способы подключения к инженерным системам здания. Такие цифровые модели уместны в основном для технически простых устройств.


      Цифровые модели агрегатов для вентиляции и кондиционирования воздуха компании VTS

      Проектирование системы обеспечения микроклимата сооружения, включающая  агрегаты для вентиляции и кондиционирования воздуха и сеть воздуховодов должно обязательно производиться в комплексе. Для этого необходимо, что бы уже в начальной стадии проекта, для каждого помещения был определены параметры воздухообмена и обслуживаемая его система вентиляции.

      Часто бывает так, что первоначальные данные претерпевают значительные изменения во время реализации проекта. Изменяются планы прокладки и обвязки трубопроводов, схемыподведения электроснабженияк вентиляционному агрегату, а также путиподключения к нему воздуховодов.

      Регулярно типовые базы данных оборудования от производителей содержат неактуальные, т.е. неприспособленные к внесенным в проект изменениям параметры, что, в свою очередь, может приводить к ошибкам в расчетах инженерных сетей.Эти базы данных, правда, могут изменяться вручную, однако этот процесс требует значительных временных затрат.

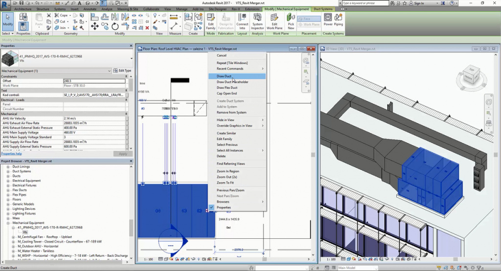
      Фото 2. Моделирование воздуховодов, подводимых к вентиляционной установке VENTUS



      Фото 3. Пример моделирования гидравлических присоединений для вентиляционных агрегатов  VENTUS


      Фото 4. Примерная сервисная зона вентиляционного агрегата VENTUS

       

      Компания VTS, понимая специфику работы и потребности проектировщиков, пошла по пути создания цифровых моделей агрегатов для вентиляции и кондиционирования типоряда VENTUS в режиме он-лайн. Это стало возможнымблагодаря внедрению новой программы подбора оборудования ClimaCAD OnLine 4.0, которая может генерировать файлы в формате RFA.

      Цифровые модели вентиляционных установок содержат всю необходимую техническую информацию для расчёта и присоединения (connector):

      • к системам воздуховодов;

      • к трубопроводов обвязки;

      • к системе канализации;

      • к системам электроснабжения.

        Кроме того модели содержатвсе габаритные и присоединительные размеры, информацию о зоне обслуживания устройства (maintenance) и сервисной зоне (repair).

        По пожеланию пользователя, все параметры могут быть представлены или в соответствии с европейской илис американскойсистемами единиц измерения. Всеприсоединения (connectors) могут использоваться в режиме Preset или Calculating без потери данных.


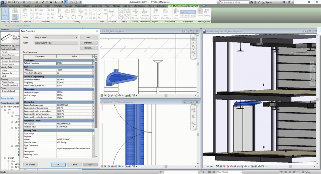
      Цифровые модели воздушных завес WING и воздушно-отопительных агрегатов VOLCANO.


      Компания VTS предоставляет также цифровые модели воздушных завес WING и нагревателей воздуха VOLCANO. Модели содержат электрические и гидравлические присоединения с соответствующими техническими данными. Представление оборудования в Revitвыполненотаким образом, чтобы облегчить проектировщику интуитивный выбор правильного варианта его монтажа. Для агрегатов VOLCANO доступен выбор произвольного угла наклона устройства относительно горизонтали, а также демонстрациядальнобойности воздушной струи. Визуализация диапазона дальности воздушной струи облегчит проектировщику размещение оборудования так, чтобы они соответствовали требованиям и критериям проекта.

       

      Фото 5. Использование в проекте воздушно-отопительных агрегатов VOLCANO



      Фото 6. Использование воздушных завес WING в проекте

       

      Предоставление компанией VTS, так называемых, семейств для среды Autodesk Revit® значительно облегчает проектировщикам моделирование инженерных систем здания на основе использования одной и той же платформы. В настоящее время генератор цифровых моделей оборудования он-лайн от VTS представляет собой уникальное решение в среде BIM. Он обеспечивает создание моделейагрегатов для вентиляции и кондиционирования воздуха типоряда VENTUS практически «в текущем режиме» в произвольной конфигурации и с произвольными параметрами.

      Назад к списку
      О нас
      Новости
      Проекты
      Карьера
      Контакты
      Академия online
      Системы вентиляции
      BTC
      BTC HY
      BTC Pool
      BTC Residence
      BTC Compact
      BTC S
      C-BTC S
      BTC Compact S
      Y-BTC
      D-BTC
      Чиллеры BTC CM
      BTC Rooftop
      Фанкойлы BTC Fancoil
      Воздушно-отопительные агрегаты
      VOLCANO
      ВОЛКАНО РУ
      CABERO
      Конденсаторы
      Драйкулеры
      Воздушные завесы
      WING PRO
      Москва, Проектируемый пр-д 4062, 6с16
      info@vtsrussia.ru
      +7 495 799 94 01
      © 2026 ООО ВТС | Все права защищены.
      Политика конфиденциальности
      Создание сайта WRP